+7 (861) 991-64-84
Оставьте ваш номер и мы вам перезвоним
Мы на связи
+7 (861) 991 6484
Нажимая на кнопку, вы даете согласие на обработку персональных данных и соглашаетесь c политикой конфиденциальности

Квартира Art & Loft

Однокомнатная квартира в стиле лофт. Площадь 37 м.кв. Заказчик мужчина, бизнесмен, меломан, коллекционер, путешествия и старинные фотоаппараты - его хобби.

Срок проектирования: 1 месяц.

Срок реализации проекта: 3 месяца.

Главная задача – это сделать стильный, светлый интерьер с минимальным бюджетом, но так, чтобы не было заметно что экономили. Мы такой запрос у клиентов встречаем регулярно, и знаем, как это сделать.

рекомендуем смотреть на десктопе
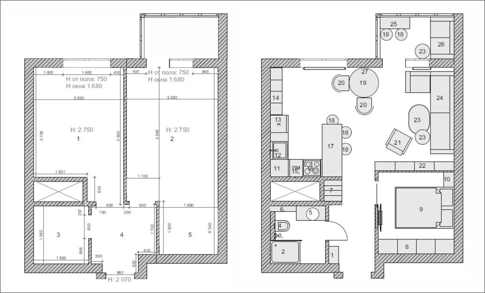
Первоначальную планировку мы переделали. В небольшом пространстве однокомнатной квартиры мы разместили объединенное пространство кухни и гостиной, выделили спальное место в отдельную зону. Света в помещении стало существенно больше.
Стеллаж, он же перегородка между спальней и залом, разделяет пространство как эстетически, так и функционально. Естественный свет проникает в спальню сквозь заднюю стенку стеллажа, выполненную из листов молочного акрила, создавая интересную игру теней, благодаря предметам расставленными на стеллаже. Предусмотрели отверстия для вентиляции в спальной зоне.
Мы не стали зашивать потолок гипсокартоном или натяжным потолком по трем причинам. Во-первых, это бы увеличило бюджет, во-вторых клиенту очень нравится натуральный бетон, в-третьих, мы сохранили высоту потолков. Потолок оставили как был от застройщика, на нем расположили наружную проводку используя витой провод, сформировали красивые направления, что добавило изюминку интерьеру.
Кухня со встроенной техникой – это одно из требований клиента. Кухонный остров расширил полезную рабочую площадь кухни, добавил функциональности, зонировал и удачно вписался в помещение.
Заказчик очень просил организовать в квартире уютную и комфортную релакс зону. Разумеется, лучшим местом для такого был балкон с его восхитительным видом на город и на аэродром, с которого постоянно то взлетают, то садятся самолеты.
В этом проекте мы решили поэкспериментировать, и сделали роспись на стене по фактурным обоям. На мой взгляд фактура обоев дополнительно подчеркнула роспись напоминающую структуру необычного природного камня. Эти яркие пятна, волнистые линии придали данному проекту свежести, и разбавили настроение лофта свежими цветами. Эксперимент по росписи на фактурных обоях удался!
В минимальном пространстве санузла удалось разместить все необходимое – унитаз с инсталляцией, душевую кабину, стиральную машину, раковину и место для хранения. Раковина расположена над столешницей, а под ней размещена стиральная машина; короб для инсталляции превратился в стильную полку. Все пространство гармонично подсвечено, и предусмотрена специальная тусклая подсветка, комфортная для глаз в темное время суток.
Залогом успешного воплощения проекта было осуществление пристального авторского надзора и комплектации. Иначе результат наверняка был бы иным, строители стремились все упростить для себя, а заказчик сомневался, что же ему выбрать при закупке отделочных материалов и мебели. Мы оперативно решили все текущие вопросы проекта.
Для того что бы в итоге все детали проекта идеально сочетались, мы подобрали и закупили в интерьер все аксессуары, посуду, текстиль, дозаторы и прочие мелочи. Клиент с радостью доверился вкусу дизайнера - это высшая похвала в нашей работе! Получилось уютно и оригинально.
ОСТАВЬТЕ ЗАЯВКУ
И ПОЛУЧИТЕ ПРИМЕР ДИЗАЙН-ПРОЕКТА
Заполняя данную форму, Вы даете согласие на обработку Ваших персональных данных